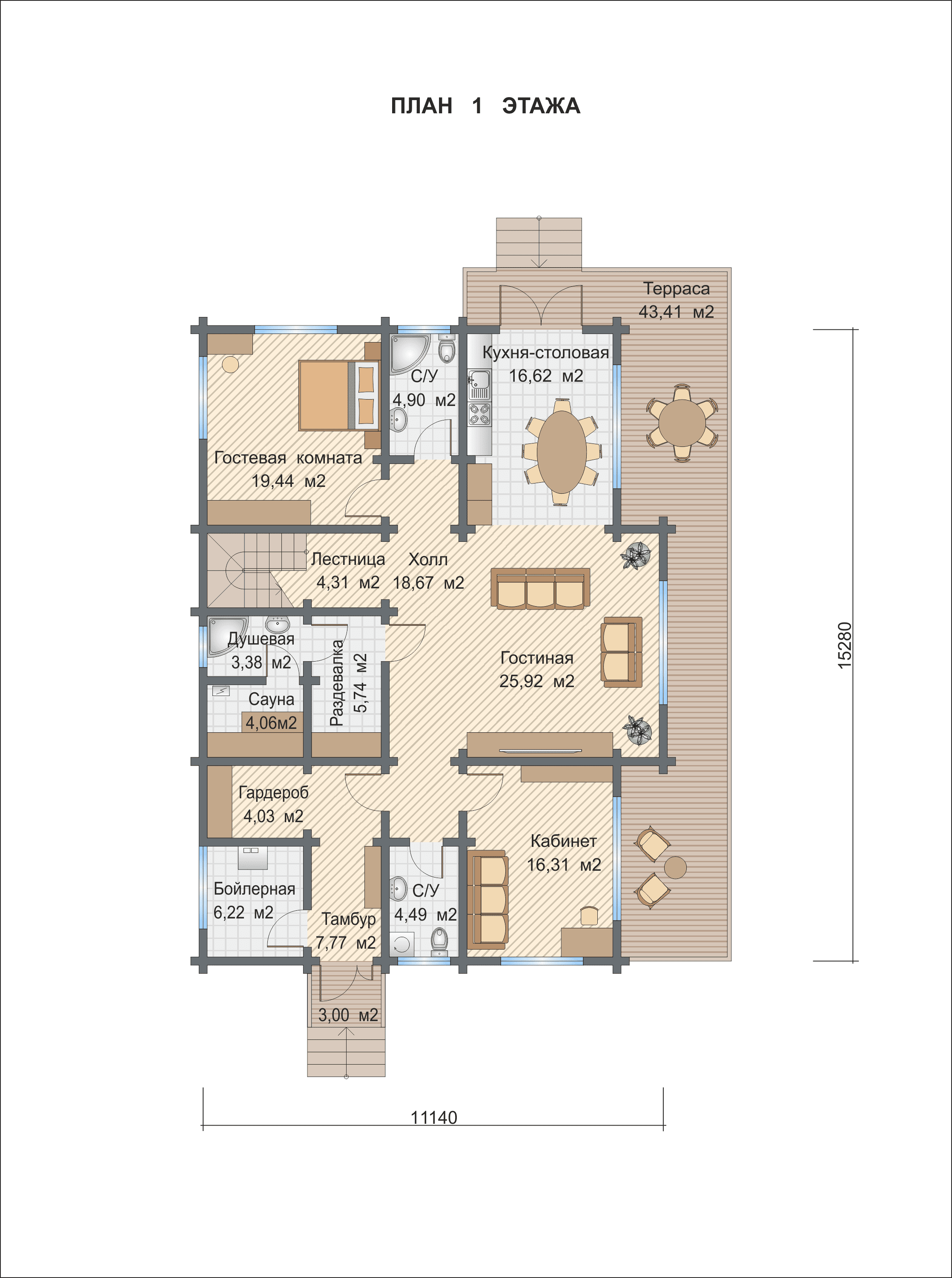
Полезная площадь проекта "Монреаль" - 300 кв.м. По проекту "Монреаль" - двухэтажное здание, которое также оснащено большой террасой, выход на которую осуществляется через просторную столовую. Площадь террасы составляет - 43,41 кв.м.
Также, в доме есть большая гостиная, на первом этаже расположен кабинет и банный комплекс, необходимые хозяйственные помещения. Второй свет создает уютную атмосферу в доме в совокупности с большой площадью остекления гостиной.
По проекту в здании 5 спален: 4 спальни на втором этаже + 1 гостевая комната на первом этаже, которые можно переоборудовать под другие любые необходимые помещения. Дом оборудован пятью санузлами.








