Полезная площадь проекта "Грац" - 226,3 кв.м. По проекту "Грац" - двухэтажное здание, которое также оснащено крыльцом. Площадь крыльца составляет - 7,04 кв.м.,
Также, в доме есть большая гостиная, совмещенная с кухней-столовой.
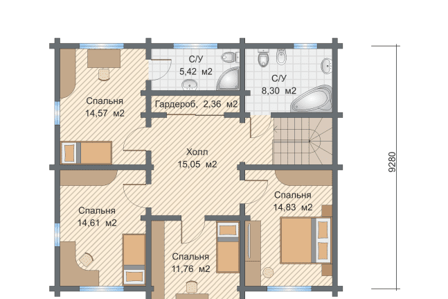
По проекту в здании есть 3 спальни на втором этаже, которые можно переоборудовать под другие любые необходимые помещения.
Также дом оборудован двумя санузлами.








