Полезная площадь проекта "Линкольн" - 242,98 кв.м. По проекту "Линкольн" - двухэтажное здание, которое также оснащено крыльцом и террасой.
Также, в доме есть большая гостиная, совмещенная с кухней-столовой.
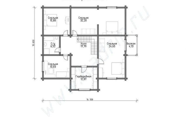
По проекту в здании есть 4 спальни на втором этаже, которые можно переоборудовать под другие любые необходимые помещения.
Также дом оборудован двумя санузлами.








